产品中心

首页产品中心XR-APF系列有源电力滤波器

XR-APF系列有源电力滤波器

文件下载
  • 产品用途
  • 型号及含义
  • 产品特点
  • 使用环境
  • 主要技术参数

XR-APF系列有源电力滤波器并联连接到电力系统,并且通过外部采样环路实时收集电力系统数据。该器件的内部核心计算芯片用于分析系统中的谐波分量数据并控制IGBT。高频开关在系统谐波电流的相反方向上输出具有相同幅度的电流,以抵消系统谐波电流,从而达到控制系统谐波电流的目的。

XR-APF系列有源电力滤波器型号规格.png

(1)同时具有谐波控制,无功补偿,三合一功能。可根据现场不同需求灵活调整功能。

(2)完整的响应时间为10ms,可以使系统处于理想状态,THDI小于5%,PF达到0.99,并且三相不平衡度小于或等于3%。

(3)可以滤除2〜50个谐波,在此范围内任意选择谐波次数,并调整过滤器输出尺寸以获得最佳过滤效果。

(4)无功补偿范围(-1〜1)。电容和无功功率可以任意切换时间。可以满足冲压,压铸等设备的无功补偿要求。

(5)模块化设计,易于维护和安装。支持两种安装方式:机架式、壁挂式安装。

(6)独立风道设计,确保设备具有良好的散热能力,并具有全面的温度检测系统,实时检测设备温度信息。

(7)适用场合:适用于系统无功功率波动稳定,谐波失真严重的场合。

 

(1)防护等级: IP20

(2)环境温度:-10℃~+45℃

(3)相对湿度:≤95%,无凝结

(4)海拔:<2000m,无凝结

(5)冷却方式:智能风冷


(1)过滤范围:2〜50次谐波。

(2)工作频率:50Hz。

(3)保护功能:电网过压,欠压,缺相,三相瞬时过流,三相延迟过流,母线过压,母线欠压,过热,风扇故障,电源故障,限流保护,频率保护,保险丝故障。

(4)集中监控:可选的7/10英寸集中监控触摸屏,每个集中监控触摸屏可控制6个APF模块。

(5)通讯:RS 485通讯和MODBUS-RTU协议。

(6)三相不平衡调整:满负荷的三相不平衡补偿。

(7)快速响应时间:≤40us。

(8)完整回应时间:≤10毫秒。

(9)无功补偿:全容量补偿范围从超前电流到滞后电流。

 

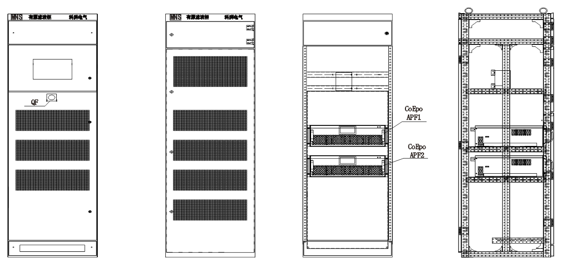
XR-APF系列有源电力滤波器1.png以上为机架式安装,适合集中管理,本地管理,机柜最大容量为750A,带10In液晶触摸屏,可与多种类型的配电柜组合使用,安装简便。

XR-APF系列有源电力滤波器2.png


壁挂式安装,适合局部治理,现场安装空间相对狭窄的场合,单个APF模块壁挂式安装,灵活方便。

另:整柜式APF可根据技术协议,另行与我公司协商确定。

 

 陕公网安备61011202000827